Silvadec lance son configurateur terrasse nouvelle génération

février 2026
Corporate


Conçu pour les professionnels de l'aménagement extérieur et facile d'usage pour chacun, le nouveau configurateur terrasse Silvadec simplifie la conception, le calepinage et le chiffrage des projets. Un outil rapide, précis et directement opérationnel sur tous vos supports, ordinateur, tablette ou mobile.

Un outil pensé pour la réalité des projets professionnels

Concevoir un projet terrasse composite nécessite de gérer simultanément de multiples paramètres techniques : dimensions exactes, contraintes de pose, optimisation des découpes, calcul précis des quantités, anticipation des chutes matière, établissement de devis détaillés. Le nouveau configurateur terrasse Silvadec a été développé pour répondre à l'ensemble de ces exigences.

Quatre piliers fonctionnels pour gagner en efficacité

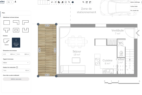
Rapidité d'exécution

Image

Configurateur adapté à tout type d'appareil de bureau ou mobile.

Le configurateur génère un projet complet en quelques minutes. L'architecture technique assure des temps de réponse courts, même sur des configurations complexes ou des surfaces importantes.

Fiabilité technique

Chaque fonction a fait l'objet de tests approfondis en conditions réelles avant le déploiement. Les algorithmes de calepinage ont été validés sur plusieurs dizaines de configurations types, incluant les cas de pose spécifiques (formes non rectangulaires, intégration d'obstacles). La stabilité technique garantit une utilisation sans interruption.

Précision du calepinage et du quantitatif

Le moteur de calcul intègre les caractéristiques techniques spécifiques aux lames composites Silvadec : dimensions exactes, sens de pose recommandé, espacements réglementaires, structure porteuse. Le quantitatif matière prend en compte les taux de chute réels observés sur chantier, permettant d'éviter les surplus inutiles ou les pénuries en cours de réalisation.

Qualité des livrables

Les documents générés — plans de calepinage, quantitatifs détaillés, récapitulatifs de projet — sont directement exploitables. Les exports sont structurés pour s'intégrer dans les processus de devis existants, avec des formats compatibles et des informations techniques complètes.

Reconnaissance automatique de plans par intelligence artificielle

Image
plan lu et reconnu par l IA

Le configurateur intègre une reconnaissance automatique de plans par intelligence artificielle. Importez un plan PDF ou image : l'IA extrait dimensions et cotes pour générer automatiquement la configuration, éliminant la ressaisie manuelle et les erreurs de mesure.

Un accompagnement professionnel continu

Depuis plus de 20 ans, Silvadec accompagne les professionnels de l'aménagement extérieur en bois composite. L'équipe commerciale reste disponible pour accompagner la prise en main du configurateur et apporter son expertise sur vos projets. L'outil évoluera en fonction des retours terrain.

Disponibilité immédiate

Le configurateur terrasse Silvadec est accessible dès maintenant, gratuitement, sans création de compte préalable obligatoire.

Accéder au configurateur terrasse

Découvrez nos autres actualités

Image
Terrasse en bois composite behome Nuances Chêne à la lumière du soir

Silvadec 2026 : réinventer l'essentiel

janvier 2026
Corporate
Design
Économie circulaire
Image
Logo de la Certification Ecovadis Platinium, sur fond de terrasse Nuances Chêne clair

On visait l’or, mais… on a eu mieux !

novembre 2025
Corporate
Image

Silvadec obtient la certification ISO 9001

juillet 2025
Corporate
Image

Silvadec lance sa nouvelle lame de terrasse Nuances Chêne clair

juin 2025
Design
Image

RSE | Avec Heuliad Environnement, Silvadec se lance dans le recyclage de plastique !

avril 2025
Économie circulaire
Image

EcoVadis | Silvadec décroche la médaille d’or !

octobre 2024
Corporate
Économie circulaire

Top 5% mondial : Silvadec décroche la médaille d'or EcoVadis pour ses actions RSE.

Image
Salon Carrefour du Bois_Nantes_2024

[SALON] NOUVELLE LAME IPÉ AU CARREFOUR INTERNATIONAL DU BOIS

mai 2024
Corporate

Venez nous retrouver !

Image

Silvadec : 87% d'économie avec son nouveau groupe froid industriel

mars 2024
Économie circulaire
Image
Portrait de Bénédicte Jézéquel, présidente et co-fondatrice de Silvadec

Bénédicte Jézéquel, lauréate du Palmarès Les Têtes 2024 !

mars 2024
Corporate

La co-fondatrice de Silvadec, Bénédicte Jézéquel, est reconnue parmi les leaders internationaux bretons.

Image
terrasse pays bas

Silvadec publie son 1er bilan de responsabilité sociétale et environnementale

février 2024
Économie circulaire

En 2023, Silvadec présente son engagement environnemental à travers son premier rapport RSE.